Pandawa

Overview

Property ID: 333
  • Villa, Villa, Freehold, Leasehold
  • Property Type
  • 3
  • Bedrooms
  • 3
  • Bathrooms
  • 240
  • sqm
  • 333
  • Property ID
  • Q3 2025
  • Year Built

Description

Set on Bali’s dramatic southern coastline, this villa is a rare sanctuary where elegant design, tranquil landscapes, and tropical luxury come together in perfect harmony. A remarkable expression of modern tropical living, this residence offers an exceptional investment opportunity in one of Bali’s most sought-after destinations.

Situated on a 600-square-meter plot with 240 square meters of thoughtfully designed living space, the villa combines clean architectural lines with warm natural elements. The result is a contemporary home that remains deeply connected to its natural surroundings. Every detail—from the floor-to-ceiling windows that blur the lines between indoors and outdoors, to the meticulously curated interiors—reflects a design philosophy rooted in elegance and sustainability. The villa features three spacious ensuite bedrooms, an open-plan living and dining area, and a private 9-meter pool that forms the heart of relaxed outdoor living.

Located just minutes from the iconic Pandawa Beach, the villa offers direct access to Bali’s finest coastal lifestyle. This beach is known for its natural beauty and calm waters, and is fast becoming one of the island’s most desirable destinations. The villa is also within close proximity to iconic locations such as Uluwatu, Bingin, and Dreamland—making it perfect for both unwinding and adventure.

What truly sets this villa apart is its commitment to quality, sustainability, and forward-thinking design. Built with premium materials and designed for low-maintenance living, the project integrates solar panels, energy-efficient systems, and environmentally conscious water management.

Address

  • City Bali
  • Area Pandawa
  • Country Indonesia

Details

Updated on June 4, 2025 at 11:26 am
  • Property ID: 333
  • Price: $395,000
  • Property Size: 240 sqm
  • Land Area: 600 sqm
  • Bedrooms: 3
  • Bathrooms: 3
  • Year Built: Q3 2025
  • Property Type: Villa, Villa, Freehold, Leasehold
  • Property Status: For Sale
  • Leasehold Term: 100 yrs or Freehold

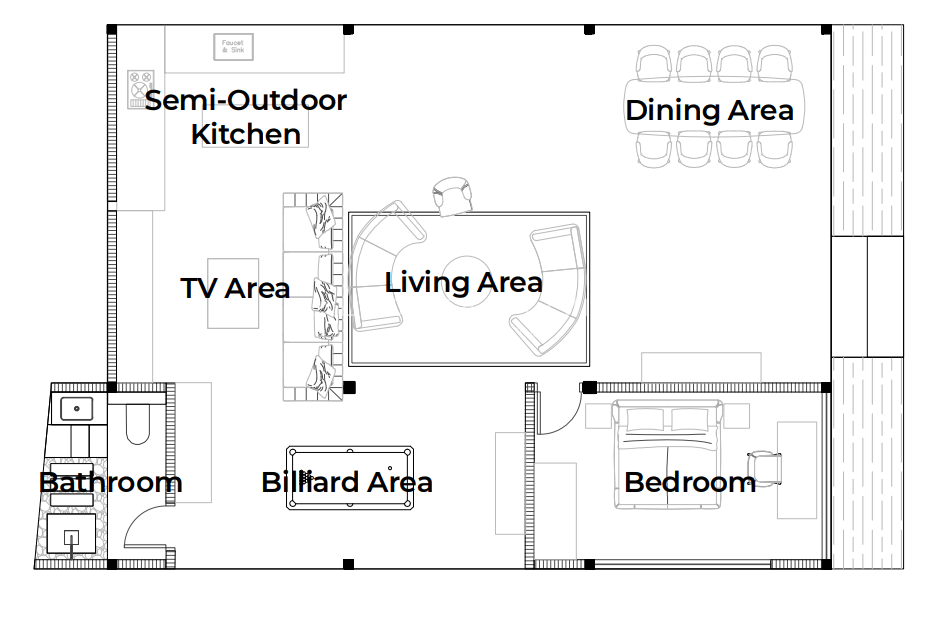
Floor Plans

image

Description:

image

Description:

image

Description:

Contact Information

Bali Dream Living Real Estate

Enquire About This Property

Compare listings

Compare
Bali Dream Living Real Estate
  • Bali Dream Living Real Estate

Favorite Listings